Host & Stay - 1 Coastguard Cottages
Preview only — see all hotel photos
See all 21 photos
Hotel a térképen
Host & Stay - 1 Coastguard Cottages
Az 1 hálószobás Host & Stay - 1 Coastguard Cottages Scarborough közel van olyan városi nevezetességekhez, mint a körülbelül egy 5 perces sétára található St Marys Church.
A Scarborough-i Krikettklub csupán 1 km-re, a South Cliff olasz kertek pedig nagyjából 2 km-re helyezkedik el a Scarborough városi nyaralótól. Az ingatlan néhány saroknyira található az olyan szórakozóhelyektől, mint a Scarborough-i Szabadtéri Színház. A közeli látnivalók közé tartozik a mindössze 10 percnyi sétára található Scarborough vára is.
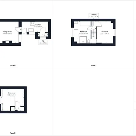
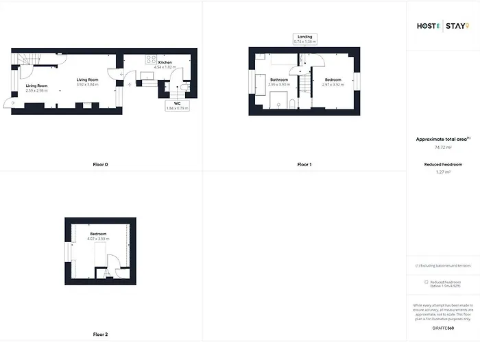
A Scarborough városi szállás külön WC-vel és zuhanyzóval ellátott fürdőszobát biztosít. A fürdőszobákban hajszárító és törölközők is biztosított kényelme érdekében.
Az 1 fürdőszobás villa biztosít egy teljesen felszerelt konyhát kenyérpirítóval és sütővel. Az Ask Italian Italiaanse ételekkel kényezteti vendégeit néhány pillanatra a Host & Stay - 1 Coastguard Cottages. A Host & Stay - 1 Coastguard Cottages továbbá egy 1 km-es távolságra van a D St Thomas Street buszmegállótól.
Felszereltség
Főbb kényelmek
- Wifi
- Háziállat nem engedélyezett
Szolgáltatások
- Nemdohányzó
- Wi-Fi
- VIP be-/kijelentkezés
- Háziállat nem engedélyezett
- Füstérzékelők
- Kulcs belépés
- Elektromos vízforraló
- Konyhaedények
- Kert
- Fűtés
- Ülősarok
- Étkezőasztal
- Vasaló eszközök
- Mosógép
- Ingyenes piperecikkek
- LCD TV
- Szőnyegezett padló
Irányelv
Térkép
Helyi látnivalók
Látványosságok
- Scarborough Castle (150 m)
- Peasholm Park (1 km)
- Stephen Joseph Theatre (1 km)
Repülőterek
- Humberside Airport (96 km)
Vasútállomások
- Scarborough Train Station (1,2 km)
Értékelések
100% -ban ellenőrzött vélemények